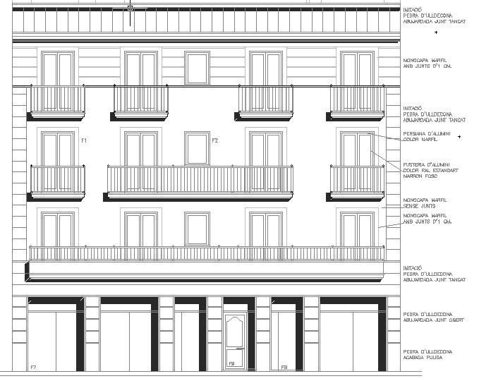
EDIFICI DE 9 HABITATGES a C. Misericòrdia 37 de Reus
Edificació privada



EDIFICI DE 9 HABITATGES a C. Misericòrdia 37 de Reus 2004-2006 Edifici de nou vivendes, local comercial i garatge al carrer Misericòrdia de Reus: Superfície: 2.210 m2 Inversió associada: 0,85 milions d’€